Curated by: John Walklate

Estimated reading time: 1 hour 45 minutes

The Innocenti Works – Lambrate, Milan

From the air, the Innocenti Works of Milan resembled a city built from steel and rhythm. Its avenues ran straight as the lines of a drawing board; its sheds stretched beyond sight; its water towers like the pipes of a vast industrial organ. Within its perimeter, movement followed geometry — every truck, press, and human gesture joined to a single, ordered pulse.

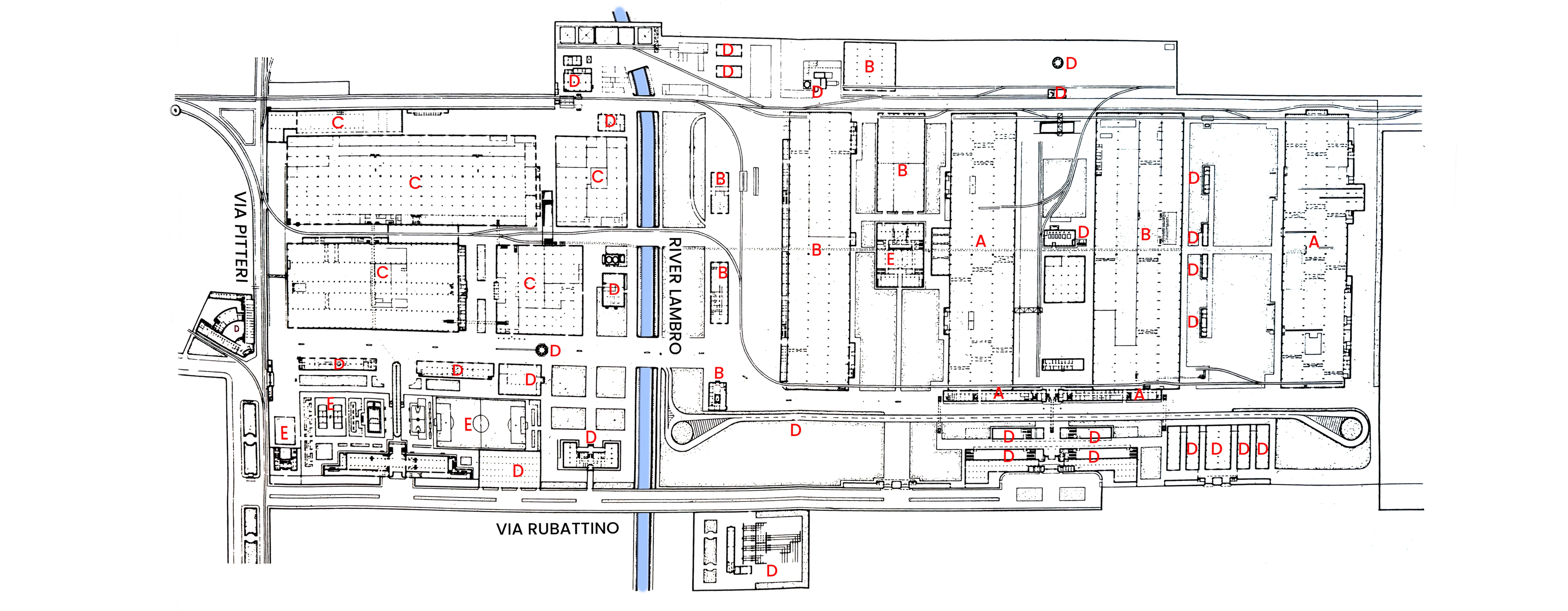
The plant was divided into five principal sectors:

  • A – Mechanical Division (Heavy Engineering) – foundries, presses, and rolling-mill construction.
  • B – Motor Division (Automobiles) – stamping, painting, and assembly of the Austin-Innocenti range.
  • C – Motor Division (Scooters & Light Transporters) – the halls of the Lambretta and Lambro.
  • D – Auxiliary Services – energy plant, toolrooms, foundries, and internal rail.
  • E – Social Services – canteens, clinics, schools, and recreation grounds.

These were not independent factories but organs of one body, connected by conveyors, pipes, and purpose. Raw steel entered at one gate and emerged at another as a machine, a car, or a scooter. To understand the Innocenti Works was to understand a living organism where precision itself became a philosophy.


The Rebirth of the Innocenti Works

Fratelli Innocenti 1933 publication showing tubular steel products and applications
Fratelli Innocenti Publication – 1933
An early pre-war catalogue illustrating the range of tubular-steel products manufactured by Fratelli Innocenti: scaffolding systems, adjustable joints, irrigation equipment, street-lighting supports, and industrial framework components. These innovations established the technical foundation that later enabled the Lambrate Works to emerge as a centre of large-scale steel and mechanical production.
Image: British Lambretta Archive

Innocenti had defined this approach before the war. A 1933 house booklet, Applicazioni Tubolari Acciaio, set out the firm as a technical organisation built around the steel tube: engineers were offered free collaboration on any problem where tubular elements could serve; modern works would execute and install complete plants; and a regular bulletin kept practitioners informed of developments in Italy and abroad. The programme divided activity into four fields—building & electrical installations, agriculture & sport, industrial plants, and mechanical applications—turning tube from commodity into method and service.

When the war ended, nothing of Innocenti’s original works remained intact. Bombing had torn the furnaces apart and scattered the men who once tended them. Yet out of that devastation rose a new resolve: to rebuild not simply a plant, but a model of modern industry. Ferdinando Innocenti returned to the ruins with the same calm determination that had driven his earliest experiments in steel tubing. What he envisioned was not restoration but rebirth.

Even in family recollections the idea of invention appeared early. A 1950s profile by Giuseppe Grazini recalled Luigi Innocenti as an eighteen-year-old who could not find fuel during the wartime shortage and decided to build a small electric car powered by batteries. The experiment ran only a few kilometres but captured the attitude that later shaped the Lambrate works: curiosity joined with method, a refusal to accept limitation as final. The same impulse that made a boy improvise a car would, within a decade, lead a factory to design its own automobiles with industrial precision.

Early electric prototype built by Luigi Innocenti at eighteen years old, featured in Giuseppe Grazini’s article 'L’Innocenti l’ha inventata un ragazzo'
Luigi Innocenti’s experimental electric car
Featured in Giuseppe Grazini’s article “L’Innocenti l’ha inventata un ragazzo”, this small battery-powered prototype was built by Luigi Innocenti at just eighteen years old during wartime fuel shortages. Though modest in range, it embodied the inventive spirit that would later define the Lambrate Works and its modern automobile division.
Image: British Lambretta Archive

Concrete mixed with hope; cranes traced new skylines; the sound of hammers returned to the Milanese dawn. Within a few years, on the same ground where destruction had fallen, there stood a complex covering more than a million and a half square metres — a self-sufficient city of production. Every structure, every conduit, every window was drawn to serve the principle that precision is progress.

In the immediate post-war years that method matured into standardised systems under the Dalmine–Innocenti banner. Seamless “Dalmine” tube worked with a family of precision joints—ortogonale, semplice, orientabile, di testa, a perni, parallelo, inclinabile—and accessories such as screw jacks, base plates, locking pins and wheels. Typical mechanical data quoted in the literature (tensile strength around 55 kg/mm² with elongation near 17%, walls around 3–3.25 mm on the common sizes) expressed what the system promised: predictable strength, repeatable geometry, and a national network able to design, sell, rent and erect complete scaffold schemes.

Inside those walls, thousands of technicians, draughtsmen, and labourers worked in disciplined rhythm. Conveyors slid beneath travelling cranes, rails crossed the yards, furnaces breathed in sequence. The new Innocenti Works spoke in a language of clarity: the hiss of steam, the measured thunder of presses, the click of gauges on marble-topped tables. By the early 1950s the Works had become one of Europe’s most modern industrial centres — rational, efficient, and unexpectedly graceful. Visitors remarked on the order: broad avenues, gardens between sheds, daylight flooding through glass roofs. It was a place built to endure, and to be understood.

Sector A – The Mechanical Division (The Foundations of Heavy Engineering at the Innocenti Works)

The Division’s authority grew from Innocenti’s pre-war tubular culture: precision in joints and frames became precision in machine beds, press housings and rolling-mill columns.

Sector A was the first heart of the Innocenti Works, where metal took on purpose and the factory drew its strength. The approach to these halls was like entering a cathedral of engineering: high roofs framed by lattice girders, gantries moving above in measured arcs, and the slow pulse of furnaces visible through the smoke-glass panels. Here, the language of the Works was spoken in weight and temperature, in the precision of flame and feed-rate. Everything that followed in the motor divisions — every car body, every Lambretta engine — rested upon the authority of this division.

The long halls echoed not with noise but with rhythm — a measured cadence that turned raw steel into the bones of production.

Mechanical Division, Innocenti Works — six parallel avenues of lathes, late 1940s
Mechanical Division — the long avenues of turning
Six parallel rows of centre lathes running the length of the bay, early post-war configuration
Image: British Lambretta Archive
Molten steel pouring at the foundry of the Innocenti works, Lambrate
Foundry – Steel Melting and Pouring
Molten steel is tapped from an electric furnace in the foundry of the Mechanical Division. The workers, protected by heat-resistant suits, guide the stream into the ladle beneath — the glowing heart of Lambrate’s heavy-engineering operations, where the raw material for Innocenti’s machine tools and press bodies was born.
Image: British Lambretta Archive

The foundries lay at the eastern edge of the plant, built as a sequence of bays where cupola and electric-arc furnaces stood side by side. Charges of pig iron, scrap, and alloying elements were lifted by overhead crane into the melting shells, their glow turning the roof trusses red. When the metal reached the correct heat, a signal bell carried through the noise; the tap opened, and the stream poured into ladles lined with fresh refractory. Overhead traveling cranes moved on runway girders high under the roof trusses, their operators guiding loads across the bays with quiet precision, while on the floor narrow-gauge trolleys carried castings between the great machines. Mould boxes waited in ranked lines, coated, cored, and vented, the sand packed to the geometry of the day’s order. Once poured, the casting line moved forward — shake-out, shot-blast, and first inspection — the rhythm never broken. The aim was constancy: a chemistry that did not drift, a pour that behaved the same at the thousandth piece as at the first.

Mechanical Division, Innocenti Works – Maserati lathes and general machining, late 1940s
Mechanical Division, Innocenti Works – rows of Maserati lathes and general machining equipment within the heavy-engineering bays, late 1940s. Image: British Lambretta Archive

Beyond the foundry walls began the world of machining and fabrication. The air changed from heat to oil; the floor shone with a film of coolant and swarf. Along a central avenue stood the long-bed planers — ten-metre tables built in the Works’ own shops — and beside them vertical borers capable of swinging three-metre housings. The operator, half hidden by the guard rail, adjusted the feed and depth until the blue chips fell like ribboned curls around his boots. Nearby, horizontal borers drove their tools into reduction-gear frames, the bar advancing through steel as if carving language into matter. At the far end of the hall, a facing lathe the height of a man finished the joints that would later bear hydraulic presses or rolling-mill columns. The numbers engraved on each job card told the story of these machines — 0.02 mm tolerance on a bearing face, ten microns on the centreline of a bored housing — and every cut was recorded in ink before the next operation began.

Long-bed planing machine inside the Mechanical Division of the Innocenti Works
Long-bed planing machine in the Mechanical Division
A vast planing machine with a reciprocating table of nearly ten metres, used for finishing the heavy castings and press beds produced in Sector A. Its table advanced beneath fixed tool heads, cutting each surface to exact tolerance before transfer to the boring bays.
Image: British Lambretta Archive
Neri & Colombo (Nericolo) centre lathes in the Mechanical Division, Innocenti Works, late 1940s
The newly rebuilt machining halls, still pristine after post-war reconstruction.
Rows of Neri & Colombo (Nericolo) centre lathes installed during the first re-equipment phase at Lambrate. Locally built in Sesto San Giovanni, these machines marked the return of Milanese precision engineering to the Works. Billet stock and job cards in the foreground record the first rhythm of production after reconstruction.
Image: British Lambretta Archive

At the centre of the division stood the forging and press bays, the deepest note in the factory’s symphony. Here the Schloemann hydraulic presses worked under Innocenti supervision, each capable of multi-thousand-ton strokes. The press beds themselves had been machined only metres away on Innocenti planers, their surfaces scraped to a mirror finish before assembly. Hydraulic hammers of the 3 000-ton class rose and fell with a deliberate cadence, the floor trembling slightly with each impact. Operators in asbestos aprons moved between the hammer blocks with tongs that carried a half-ton billet as if it were paper. Every blow, every withdrawal to the furnace door, followed a routine learned by repetition — three heats to form, one to true, and a controlled cool under the crane’s slow traverse. The result was the architecture of modern industry: mill housings, press frames, and turbine bases that would be shipped across Europe, each carrying the Innocenti mark.

Innocenti-Calmes pilger mill built in the Mechanical Division of the Innocenti Works
The precision heart of the Mechanical Division — the Innocenti–Calmes pilger mill.
A continuous cold-tube rolling mill designed and constructed within the Mechanical Division for the production of seamless steel tubing. Built in collaboration with Calmes of France, it embodied Innocenti’s mastery of heavy engineering — transforming raw billets into high-strength tubes used across industrial and transport applications.
Image: British Lambretta Archive

Between 1948 and 1958 the Mechanical Division advanced from applying tubes to building the machines that made them. Brochures from the period record complete tube-rolling installations leaving Lambrate: Pellegrini push-bench mills and the continuous Innocenti line with Calmes pre-piercing, arranged as uninterrupted flows from billet to finished tube with automated handling that abolished reversal times. Clients in that decade ranged from Dalmine and A. L. Colombo in Italy to SAFTA (Argentina), Page Hersey (Canada), Orinoco Steel (Venezuela), The Indian Tube Company, Željezara Sisak (Yugoslavia), and works across Belgium, Poland, Sweden and the U.S.A.—evidence that Lambrate exported capital equipment with the same assurance it used to equip its own shops.

Once forged and rough-machined, the heavy frames passed to the heat-treatment bays. Long furnaces lined the walls. Components were wheeled in on bogies, the doors sealed, and the recorders set in motion. Temperature rose through the chart’s curve — 860 °C for the normalise, 600 °C for the temper — each phase documented by pen on rotating paper. Operators checked the colour through sight-ports, judged the steel’s mood, and logged the dwell time. When the doors opened, the air turned metallic and sharp, the parts emerging like dull embers ready for the next stage. Stress relief was not merely a metallurgical step but a discipline: no component left the furnace without its chart attached to the traveller, proof that its internal order matched the external precision to come.

High-frequency induction hardening generators in the heat-treatment bay, Innocenti Works
High-frequency generators for surface hardening
Used in the heat-treatment bays of Sector A to harden bearing and journal surfaces with controlled precision.
Image: British Lambretta Archive
Continuous furnaces for controlled-atmosphere welding in the Mechanical Division, Innocenti Works
Continuous furnaces for controlled-atmosphere welding
Installed within the heat-treatment bays of Sector A, these furnaces maintained a neutral gas environment to ensure flawless welds and brazed joints. The continuous belt feed allowed components to pass through precise temperature zones without exposure to oxidation — one of the many processes that defined Innocenti’s standard of metallurgical precision.
Image: British Lambretta Archive

Inspection began where heat ended. The metrology department occupied a quiet hall at the edge of Sector A, a place of white walls and daylight filtered through glass bricks. On granite tables stood dial indicators, micrometers, and optical levels mounted on tripods. Each casting or machined frame rested on blocks while inspectors checked straightness, bore alignment, and face parallelism. The tolerance sheet read like music — plus or minus five hundredths, true within a line over three metres. When satisfied, the inspector signed his initials in pencil on the job card and impressed the steel with a small Innocenti triangle. From here, the component moved either to final assembly within the Works or to the shipping yard where cranes stood ready above the rail sidings.

Adjacent to inspection lay the toolroom, the intellectual centre of Sector A. Here, the jigs, fixtures, and gauges that governed the entire factory were conceived and made. Blocks of tool steel were ground to master dimensions; gauges were engraved with serial numbers and entered into the calibration register. Once each month, the masters were re-checked against the reference standards held under glass, the act performed with near-ceremonial care. The toolroom’s silence was deliberate: thought, not noise, shaped precision. It was said that every machine in the Works, from the heaviest planer to the smallest lathe, drew its accuracy from this single room.

Above and around all of this ran the handling systems that gave the Mechanical Division its rhythm. Overhead cranes of fifty-ton capacity spanned the bays; lower lines of electric hoists ran between them for smaller lifts. Floor rails and the internal railway connected the heavy halls with the foundries, heat-treat plant, and loading yards beyond. Nothing was ever carried by chance: every path was laid out on the factory’s original plan, every movement timed to a production cycle that could absorb the heaviest castings without pause. In this way, mass and precision coexisted; the Works could build the machines that built other machines without ever losing tempo.

The people of Sector A worked to that same rhythm. Apprentices entered through the training section, learning first to file, then to machine, and finally to measure. In the foundries they learned the colour of molten metal; in the machine shops, the sound of a correct cut. Masters and foremen moved quietly between stations, carrying notebooks instead of clipboards. Discipline was not imposed but inherent: each man understood that his accuracy extended beyond himself into every car, scooter, and industrial plant the company produced. Safety and welfare were part of the order — respirators, gloves, first-aid rooms, and the unbroken chain of medical oversight described in The Welfare and Safety Codes of the Works. The system protected skill so that precision could remain uninterrupted.

When a finished structure — a rolling-mill housing, a hydraulic-press frame, or a turbine base — left the halls of Sector A, it carried with it the identity of the Works. Cranes lifted the mass onto flat-cars; the inspector’s chart travelled in a sealed envelope; the ledger recorded its weight, dimensions, and departure time. From Milan the loads went to ports, to rail junctions, and to power stations in half a dozen countries. In this way, the heavy division of the Innocenti Works became both the foundation and the ambassador of the entire enterprise. It was here that the company proved its creed: that modern industry could unite strength with exactitude, and that perfection, like steel, could be forged.

Innocenti-built horizontal boring and milling machine in the Mechanical Division at Lambrate
Horizontal Boring–Milling Machine – Mechanical Division
An Innocenti-built Multi-axis horizontal boring and milling machine operating in the heavy-engineering bays of Sector A. Used for precision machining of large industrial castings, this machine symbolised the company’s technical mastery in tool construction and mechanical design
Image: British Lambretta Archive

Beyond the production halls, where noise and rhythm defined the day, stood a quieter domain — the Centro Studi. Here, engineers, draftsmen, and designers shaped the ideas that would later take form in steel. Within its glass-fronted offices, calculations and drawings became the language of progress, linking the intellectual and mechanical heart of the Innocenti Works.

Centro Studi building at the Innocenti Works, post-war reconstruction period
The mind of the factory: the Centro Studi Innocenti.
Rebuilt in the post-war years, the Centro Studi housed the technical and design offices — the nerve centre where new machinery, vehicles, and production systems were conceived before reaching the workshops. Fronting Via Rubattino, it remains one of the few surviving buildings of the original Innocenti Works after the clearings that reshaped the industrial district along Via Pitteri.
Image: British Lambretta Archive

Sector B – The Motor Division (Automobiles at the Innocenti Works)

Sector B formed the ordered heart of the Innocenti Works’ automotive production. Here, body shells, pressed from bright steel, took form in continuous rhythm; paint hardened into gloss; engines met their chassis; and completed cars emerged under the same roof that had once produced the earliest Lambretta frames. The architecture of the halls made this logic legible — long bays, glass-brick façades, and tracks that divided the floor in lanes of motion and discipline. Within those spans, accuracy was not an aspiration but an unbroken rule.

Blanking progressed through a strict trim–pierce–flange sequence that kept metal flow predictable and edges clean. Progressive dies handled reinforcements while deep-draw tools shaped roof and door outers in single hits, each transfer finger lifting and placing in a hiss of air so the blank never dragged. The discipline of the presses was visible on the floor: die sets logged by model and position, feed rates written in chalk on the guard, and a counter that closed the shift with a number everyone trusted.

The stamping halls were immense. Multi-row presses, each driven by flywheels the height of a man, worked in continuous lines. Sheets entered one end and emerged as body panels at the other, every stroke of the press timed and registered. Noise here was rhythm — measured, deliberate, never confused. Cranes moved die-sets from racks to bolster plates with the precision of habit; lubrication jets hissed; the heavy steel smelled faintly of oil and ozone. Each panel, lifted clear by mechanical arms, bore a chalk mark that recorded time, press, and operator, binding human attention to mechanical tempo.

Press hall at the Innocenti Works, Milan — heavy stamping presses forming automobile roof panels
Press hall, Sector B
Heavy stamping lines forming roof and door outers; die-set changes handled by overhead cranes
Image: British Lambretta Archive

The body-in-white assembly — where the unpainted steel shells took shape from hundreds of welded panels — formed the structural heart of the automobile line.

Templates and locating pins defined the shape to fractions of a millimetre; welding guns flared in brief, even pulses. Weld quality was proved rather than assumed. At fixed intervals, coupons were cut and peel-tested, the results initialled on inspection cards pinned by each gate. Twin-arm spot guns followed an ordered sequence so heat did not drift across the shell, and foremen checked apertures with gauges whose datums matched the framing fixtures. If a dimension questioned the jig, the jig went back to the toolroom; geometry was a promise the Works never allowed to loosen.

Paint followed steel as naturally as tone follows word. The body shells entered the pre-treatment tunnels: degreasing, phosphating, rinsing, and drying under air curtains that lifted a mist of heat and steam. Inside the booths, electrostatic guns swept arcs of colour so even that light itself seemed tinted. When the bodies emerged from the ovens, each panel carried the measure of its film, read by gloss and film-thickness gauges; no car moved forward until gloss and film-thickness readings met standard, the shell examined under lamp arrays that revealed waves the eye might forgive but the Works did not. Colours had codes rather than names — a discipline that made beauty reproducible.

Trim and mechanical marriage joined the painted shells with their running gear. Engines arrived from the test cells of the motor division, their blocks still warm. On the moving floor, harnesses were clipped, hoses coupled, instruments fitted, and interiors assembled in a silence broken only by the hiss of air tools. Seats, dashboard, and glazing met the shell in precise order, every task defined by the motion of the conveyor that advanced a car length each minute. Workers spoke little; tools spoke for them — pneumatic wrenches releasing with a short chord when torque was met. The sequence was not mechanical indifference but trained attention: a ritual of alignment between hand and machine.

At the end of assembly, quality control acted as a mirror of the line itself. Light tunnels revealed surface blemishes; gauges confirmed panel gaps; electrical tests verified the integrity of each circuit. Beyond the dynamometers lay the acoustic lanes: cobbled sections and resonance beds where a new car’s quietness was judged by ear and instrument together. A faint rattle earned a chalk mark and a short return; a silent shell passed into the light tunnel for a last check of panel reflections and alignment before its card took the completion stamp. Water-test booths simulated storms; rolling roads proved the synchrony of clutch, gearbox, and axle. Each vehicle left the hall with a card stamped and signed, its serial number entered in a ledger as cleanly ruled as the factory floor.

The export yard beyond the doors gathered the day’s production in rows that caught the late sun on enamelled roofs. Fork-lifts and shunters moved with deliberate grace; shipping clerks compared chassis numbers against manifests; tarpaulins were folded and tied. From the railhead at the southern boundary, trains departed toward Genoa and Trieste, carrying the Works’ precision out to the world.

Automobile Production Summary (1959 – 1976)

  • 1959 – 1962: Launch of the Innocenti 950 and IM3. Annual output rose from 25,000 to 55,000 units as new body-press lines reached full rhythm.
  • 1963 – 1965: Introduction of the Innocenti 1100; cumulative car production exceeded 200,000 units. Exports began to expand into Europe and South America.
  • 1966 – 1969: Installation of the Mini Innocenti programme under BMC license. Output averaged 90,000 cars per year with more than 50 percent exported.
  • 1970 – 1973: New paint and assembly systems supported the Mini Mk II and Cooper 1300 models. Annual capacity peaked near 120,000 units.
  • 1974 – 1976: The Regent 1300 and 90 / 120 marked the final phase of automobile manufacture at the Works before production ceased in 1976.
  • Total Production 1959 – 1976: Over 1,050,000 automobiles built in Milan, confirming Innocenti as one of Italy’s leading post-war car producers.

Sources: Innocenti Statistical Compendium (Quadri 7 – 14)

Even here, at the edge of manufacture, order held — documentation exact, movements timed to the minute, paint still carrying the warmth of the oven. Sector B proved that scale and accuracy could coexist, that an Italian car built under the discipline of the Works was not an exception but a demonstration of how industry and craft, joined properly, could define a nation’s modernity.

Sector C – The Motor Division (Scooters & Light Transporters at the Innocenti Works)

Sector C was where precision learned to travel. After the deep timbre of the heavy bays and the measured geometry of the car lines, these halls translated the discipline of the Works into motion at human scale. A suspended conveyor traced a quiet orbit above the floor; frames advanced like notes along a stave; the steady hiss of air tools threaded the day together. Here, the Innocenti method became personal—steel and alloy resolved into a Lambretta that could cross a city in the time it took a furnace to climb from temper to heat.

Stacks of Lambretta frame loop pressings in the press shop at Lambrate
Frame loop pressings
Stacks of freshly pressed Lambretta frame loops awaiting transfer from the body-panel department to the assembly lines. Each section was formed in large mechanical presses and stored in precise order to maintain dimensional accuracy throughout production.
Image: British Lambretta Archive

The route began with geometry made visible. Tubular steel, cut and mitred in the preparation bays, arrived at the rotating frame fixtures whose locating pins and datum faces had been ground in the toolroom of Sector A. The jigs indexed by degrees rather than guesswork, presenting each joint to the torch in an order recorded on the work card. Welds climbed around the headstock, the seam finishing with a cleanliness that could be heard in the ring when a fitter tapped the tube. Completed frames moved in quiet procession to the phosphating corridor—baths and spray curtains that scoured the surface to the same pale readiness one saw on the car shells—then into the enamel tunnel. The booths hummed; electrostatic guns swept their overlapping arcs; the long oven glowed at a heat that turned solvent to gloss and gloss to Innocenti colours. When the frames emerged and cooled beneath the skylights, each carried its traveller marked with time, station, and initials: the documentary spine of the scooter’s life inside the Works.

Automatic immersion equipment with overhead monorail transfer in Sector C of the Innocenti Works
Automatic immersion line, Sector C
Pressed scooter body sections travelled by overhead monorail through the immersion stations for degreasing and phosphating before heading to the enamel tunnel—keeping surface prep continuous and uniform.
Image: British Lambretta Archive

Parallel to that bright route, and set a few degrees deeper into the sound of the plant, lay the engine shops. Raw alloy entered as crankcase and cylinder castings from automatic cycle machines of the Sutter SP 1000 type, their closing and opening timed by cam so faithfully that a man standing with his back to the line could tell the minute by the rhythm.

The precision of these lines rested on a disciplined suite of machinery, much of it built or adapted under Innocenti supervision, drawn from Europe’s foremost makers of industrial equipment:

Eight-spindle turret lathe for Lambretta cylinder machining
Eight-spindle turret lathe in operation
Dedicated to the machining of Lambretta cylinder castings, this multi-spindle unit allowed simultaneous boring, facing, and drilling operations with remarkable repeatability — a hallmark of Sector C’s precision engine work.
Image: British Lambretta Archive
Machining of Lambretta engine casings on a multi-spindle machine at the Innocenti works
Engine Casings – Multi-Spindle Machining
A worker oversees a rotary multi-spindle machine engaged in precision operations on Lambretta engine casings. The automated cycle ensured exact parallelism and flatness across the gasket and bearing faces before final assembly
Image: British Lambretta Archive

Foundry and Machining Equipment – Extract from Machinery

Foundry and Casting Equipment
  • F.E. (Sutter) – SP 1000 automatic cycle moulding machines
  • Foundry Equipment Ltd., Leighton Buzzard – continuous conveyor and box-handling systems, sand-filling and shake-out plant
  • Mollart Bros. – jigs and core-handling fixtures
  • Shot-blast plant – continuous conveyor type
Machining – Pistons
  • Cimat S.p.A. – automatic transfer machine (multi-station piston roughing line)
  • Solex Air-Gauging Equipment – comparators and measuring heads for piston inspection
  • Cincinnati, Tornos and Gildemeister – single- and multi-spindle automatics
  • Custom collet-chuck drilling machine – built under Innocenti design
  • Nickel-plating plant – automatic current-timed system
Machining – Cylinders
  • F.E. (Sutter) – SP 1000 automatic moulding machines
  • Innocenti-designed transfer line – multi-station boring and milling
  • Twin-tool boring heads
  • Solex Air Gauge – final bore measurement
  • Honing head – six-stone type
Machining – Crankshafts and Crankcases
  • Schenck Balancing Machines GmbH – twin-plane balancing drums
  • Cincinnati Milacron – horizontal mills and face grinders
  • Innocenti-built hydraulic press – for crank-web assembly
  • Solex Air Gauges – crankcase measurement and verification
  • Surface grinders – Churchill design
Inspection and Instrumentation
  • Solex Air Gauging Equipment, Paris – standard across all departments
  • Tesa and Johansson – micrometers and precision comparators
  • Innocenti Metrology Department – custom-built optical comparators and dial stands
Handling and Conveyance
  • F.E. (Sutter) – continuous conveyors for casting lines
  • Internal conveyors – Innocenti Mechanical Division design
  • Overhead travelling cranes – Demag type

Source: Machinery – The Production of Components for Lambretta Motor Scooters – Methods Employed in the Innocenti Works at Milan, Italy.

Castings cooled, shot-blast scoured the sand’s last memory from the surfaces, and inclined conveyors carried the pieces to the transfer halls. There the Cimat tables ruled: circular indexers moving from station to station while banks of vertical spindles cut bearing seats, joint faces, and oilways in an order settled by drawings and proven in practice. Coolant returned to sumps; swarf slid down bright chutes in steady spirals; the cycle lamp held green until the last spindle withdrew and the clamp released with a precise sigh. No hand hurried the part; the machines did their work at the pace that made accuracy repeat.

Machinist operating machines in the scooter production lines at Lambrate
Machining the scooter components
A machinist at work along the scooter production lines. Precision boring and turning operations prepared the engine and frame components before final assembly, ensuring every Lambretta left Lambrate with uniform performance and reliability.
Image: British Lambretta Archive
Inspector examining machined components on the scooter production line at Lambrate
Component inspection on the scooter production line
Every machined component passed through precision inspection before assembly. Gauges and comparators verified each dimension to Innocenti’s strict tolerances, ensuring consistency and reliability across all Lambretta engines produced at Lambrate.
Image: British Lambretta Archive

In the piston department the choreography shrank to thousandths. Rough-turned blanks spun in the collets of single- and multi-spindle automatics while tools brought skirts and crowns down toward measure. Ring grooves were cut at a verified 735 revolutions per minute, the scent of hot alloy mingling with light oil; cross-holes for the pin bored through on cam-driven feeds that advanced and withdrew like breath. Where the specification required, a plating line stood at the far wall—tanks in series under heated bars, current timed on switches that ticked softly as second hands—to lay down nickel in a deposit even enough to become invisible in work but present in endurance. Operators had a habit of measuring while the metal still held its warmth; a micrometer clicking shut on the final diameter could be heard under the conveyors’ murmur like the soft closure of a well-made door.

Crankshafts announced themselves by stillness rather than noise. Forged webs, faced and trued on horizontal mills, were pressed onto their pins to a measured interference and advanced to the twin-plane balancers. The Schenck drums wound the assembly up to speed; a needle that had learned to hesitate at fractions of a gram found the point and held it; a faint touch with the grinder on a counterweight erased the error. The cylinder line, a world of iron to balance the aluminium’s lightness, bored in twin-tool heads that took roughing and finishing cuts without lifting from the work, then honed on six stones expanding under hydraulic command until the cross-hatch lay too fine for the eye and exactly right for oil to remember. At the gauging benches, Solex air comparators read diameters without touching, the dial quivering at the difference between the part and the master kept under glass in Sector D. Numbers here were modest—microns and hundredths—but they guarded what mattered: that an engine which felt balanced in the cell would feel inevitable on the road.

Lambretta engine assembly line benches laid out with crankcases, cylinders and components at the Innocenti Works
Engine assembly line, Sector C.
Benches staged with Lambretta engine components—crankcases, cylinders, and sub-assemblies—prepared for sequential build and inspection before test-cell run-in.
Image: British Lambretta Archive

Benches stood in pairs beneath glass that dulled glare and deepened focus; instruments lay under covers that lifted like book leaves. Bearings were conditioned to precise temperature before fitting, so each settled into place without force. A thin coat of blue marking compound was brushed on the case face; the halves were brought together and parted to reveal the high spots, each corrected with a scraper until the surfaces mated in an even, unbroken film. Crankshaft to case, clusters to shafts, selector rails sliding home with a reluctance that ceased at the right point—each motion took its place on the traveller card, initialled and timed not to chase a quota but to keep faith with the line’s own pulse. When the cases closed and the screws met their torque, a thin line of oil drew itself along the new edges like a signature; the engine moved to the test cells, and the door between sound and silence shut on its hinges.

Parallel engine and frame assembly lines in Sector C at the Innocenti Works
Engine and frame assembly lines, Sector C
Engines advanced along one lane while completed frames moved beside them, their paths converging for final union — the mechanical heart meeting the body of the Lambretta scooter in perfect sequence.
Image: British Lambretta Archive

In those rooms the eddy-current dynamometers brought the powerplant to consciousness. Fuel lines clicked into quick-connects; exhaust take-offs drew the breath away to ducts in the wall; gauges climbed through their sequence while the operator listened for the harmonies that numbers alone do not tell. Oil pressure rose into certainty, temperature found its level, and the trace on a small chart steadied into the shape that the Works expected. A flutter on the dial could send the unit back with a pencilled note and a brief conversation that might last longer than the correction; a clean run ended with the engine drained and sealed, its tag crimped, its card marked in a hand that had been writing the same name since apprenticeship.

Beyond the test cells, beyond the last turn of the honing head and the last spark of the plating tank, the suspended conveyor softened the shop’s rhythm into procession. Frames came past in quiet intervals set by the line’s takt—around fifty to sixty seconds between stations on a full day—and the work divided itself into gestures so familiar that they seemed like rules of the language. A guided hoist took the engine and settled it into the cradle; the mounts drew tight under torque tools that signalled green only when they met their setting; cables found their paths through guides whose radii had been argued once and agreed forever; forks, hubs, and wheels closed the geometry that the drawing had proposed and the jigs had guaranteed. The horn sounded for a breath to confirm that current reached where it should. If the line lacked a part the scooter walked itself into a completion bay with a dignity that preserved the rhythm and the mood, and came back as if it had never stepped aside.

Lambretta frame assembly line with engines being installed into frames at the Innocenti Works
Engine–frame marriage on the moving line
Image: British Lambretta Archive
Lambretta wiring looms and electrical assemblies awaiting installation on the assembly line
Wiring looms and electrical assemblies
Harnesses prepared for fitting to Lambretta scooters on the main assembly line. Each loom was tested and pre-tagged for rapid installation before the frame met the engine, ensuring reliability and consistent electrical performance.
Image: British Lambretta Archive

Scale, when you looked up from the work, revealed itself in the length of the hall. Two hundred metres of belt could disappear into the ovens’ soft light and return under the roof lights a few minutes later with the warmth still in the enamel. The empty fixtures rode back overhead on the return run, clicking past at a height where they became a metronome for the eye. Floor markings divided the lanes of movement, and the sound of a torque wrench seating at exactly the right instant could be distinguished across several bays by a man who had learned to hear it. The Works had a rule about repetition: anything said twice too loudly was said wrongly. The line obeyed the same courtesy—actions repeated, but without insistence; the signal was always there, and never shouted.

Rows of completed Lambretta scooters awaiting fuel supply before dynamometer testing at the Innocenti Works
Lambrettas awaiting fuel for testing
Completed scooters assembled on the Sector C lines stood in rows beneath the fueling rigs, ready for first start-up and dynamometer trials that verified every engine before dispatch.
Image: British Lambretta Archive

On the roller benches the Lambretta learned its road within sight of the place where its engine had first turned a shaft. Mechanics brought the revs up against a water brake; the speedometer needle climbed and steadied; gears selected with the grain of the dogs; the clutch took and released without drama; the brakes argued with the drums and won in measure rather than surprise. Lamps, horn, charge—the basic civility of a machine intended for a city—answered without comment. A brief run on the Works’ internal circuit told the tester what neither gauge nor bench can quite decide: the small chorus of sounds that marks a correct assembly, the absence of a resonance that only the body can identify. A paper acceptance tag marked Controllato, with the inspector’s initials, was fixed to the unit and the record card stamped.

Across the aisle, where the rhythm was a little slower and the units carried more stance, the Lambro lines built the light transporter that earned its honesty in markets far from Milan. The chassis remained tubular—reinforced, triangulated, and jigged on floor fixtures that fixed the planes and held the diagonals to the rule. Beds pressed in the same shops that formed car panels were braced and bolted with a kind of calm that comes from routine. The engines, tuned with an ear for torque rather than flash, settled under their protective cowls and learned the weight they would carry on the Works’ short circuit: cobble strips, asphalt patches, a deliberate pothole that revealed loose thinking with more courtesy than a customer’s complaint. If a rattle spoke, it did so once; the vehicle returned to the bay, the correction happened close to the source, and the line did not need to remember it next time.

Overlooking everything, and very much part of it, the technical offices kept their dialogue with the floor. A draughtsman’s revision to a cable route appeared in a new print under glass in days rather than weeks; an engineer reading a test cell’s trace might walk down and ask a fitter about a bearing that ran a degree warmer than it had last Tuesday. In another bay the export department packed knock-down kits into waxed crates with a thoroughness that extended to the last washer counted into a bag—an attention born not from suspicion, but from the Works’ habit of finishing a sentence properly. Numbers governed everything that needed governing: tool serials in the metrology register, part references in catalogues that matched the counter of a dealer an ocean away. Between number and hand, the scooter kept its identity.

The people in these halls moved with a lightness borrowed from the machines they made. Apprentices stood at the balance bench until the notion of stillness became a sense in their fingers, then took their places without explanation. Fitters timed themselves to the line not as racers but as good companions; their speed maintained ease rather than chased it. Inspectors, for whom the word no had a music of its own, found ways to say yes that preserved the standard without harming the day. Safety was not a poster but a practice: gloves where they mattered, guards where they saved a gesture, medical rooms nearby, and an attention that neither fretted nor slept. The welfare offices were close enough to be useful and far enough not to intrude, a balance that matched the work itself.

Completed Lambretta scooters at the end of the final assembly line inside the Innocenti Works
Completed Lambrettas at the end of the assembly line
The final stretch of Sector C where fully assembled scooters emerged beneath the skylights — enamel still warm, tyres newly fitted, ready for inspection and test before dispatch.
Image: British Lambretta Archive
Innocenti Lambro three-wheeler assembly line within Sector C
Lambro assembly line
Inside Sector C, the production of Lambro three-wheelers followed parallel to the scooter lines. Chassis frames advanced through suspended conveyors for body fitting, wiring, and mechanical installation, reflecting Innocenti’s integrated approach to light-vehicle manufacture.
Image: British Lambretta Archive

By late afternoon the ranks beneath the skylights grew long—paint just warm, alloy still cool, tyres carrying the faint bloom of the mould. It is tempting to call the result simple. The simplicity was earned: by Sutter machines closing and opening on time; by Cimat tables indexing without surprise; by Schenck drums bringing needles to centre and leaving them there; by Solex gauges reading distances too small to see and too important to ignore. It was earned by a line that could build a machine every minute without ever raising its voice. When the crates closed and the trucks reversed to the bays, the blue signs that marked the service network beyond the gates took up the work in the same tone. Sector C had done more than assemble vehicles; it had demonstrated, again, the Works’ belief that precision is a form of care and that movement, rightly made, becomes a public courtesy.

Innocenti Lambrate test track beside the Naviglio canal
Factory Test Track – Final Trials
The oval test track bordering the Lambro River was used for the final trials of Lambretta scooters, Lambro light trucks, and Innocenti automobiles. Each machine underwent speed, handling, and braking tests here before approval for shipment — completing the production cycle from molten steel to finished vehicle.
Image: British Lambretta Archive
Lambretta scooters and Lambro three-wheelers in the despatch department at Innocenti, Lambrate
Despatch Department – Scooters and Three-Wheelers
Lambretta scooters and Lambretta fli 175 first series three-wheelers ready for shipment in the despatch area of the Motor Division. In the background, an Innocenti transport lorry is being loaded for delivery — the final stage of Lambrate’s production cycle, where the finished machines began their journey to dealers and distributors worldwide.
Image: British Lambretta Archive

Sector D – Auxiliary Services at the Innocenti Works

Every industrial organism requires its circulation, and within the Innocenti Works that role belonged to Sector D — the system of power, maintenance, transport, and calibration that sustained every operation from the furnaces to the paint tunnels. Though it rarely drew the visitor’s eye, its presence was constant: the low hum behind each press stroke, the precise measure in every gauge, the clean air that kept the shops bright. If Sectors A, B, and C formed the muscles of the factory, Sector D was the bloodstream.

Electrical supply entered the Works through Innocenti’s substation on Via Rubattino, opposite the main factory. From there, underground ducts carried high-tension cables to switch rooms across the site, where loads were balanced and recorded against the rhythm of production. Within Sector D, boiler rooms provided process steam and heat for the halls, and central compressor houses fed the colour-coded air mains that served presses, tools, and conveyors. Power and air were treated as measured materials: metered, logged, and kept as stable as any dimension in the metrology room.

Substation control room for the Innocenti Works power distribution
Substation control room
Central switchgear and monitoring panels where loads were balanced and recorded for distribution across the Works—electrical discipline behind the presses, furnaces, and conveyors of every sector.
Image: British Lambretta Archive

A cathedral of pipes and turbines housed in brick and glass. Here stood the great boilers whose feedwater, filtered and softened in long concrete channels, supplied steam to the entire Works. Turbine-driven alternators converted that energy into electricity distributed by underground conduits to every hall. At the panels, operators monitored the ammeters and recorders that traced the rhythm of production: when the presses of Sector B came alive, the needles rose; when the heat-treat furnaces of Sector A entered their cycles, the graphs on the chart room wall climbed in response. Power was not an afterthought but a discipline. Meters were checked, loads balanced, and any fluctuation recorded with the same care as a measurement in the metrology department.

Water followed its own architecture. From wells sunk deep beneath the site, pumps fed a network of mains that divided by function: one branch for cooling circuits, another for washing and plating, and a third for the sanitary and fire systems. Across the yards ran open channels of recirculating water that glittered in sunlight and at night carried reflections from the arc lamps overhead. Compressed-air lines shared the same paths. The steady exhalation of the compressors, audible even at the far edge of the plant, provided the invisible strength behind pneumatic tools, paint guns, and the automated feed systems of the transfer machines. The Auxiliary Services ensured that air and water — the two most ordinary elements — were raised to the status of precision materials.

Power and Air Supply Data – Extract from the Industrial Monograph

  • Power Generation: The Works’ main power plant comprised three high-pressure boilers rated at 30 tonnes of steam per hour each, feeding a turbine group with a total electrical output of approximately 9 MW. Pressure and temperature were automatically recorded on chart instruments for every cycle.
  • Distribution Network: Electricity was transmitted from the central substation on Via Rubattino through underground conduits to sectional switchboards in each sector. Load balancing was monitored continuously from the central control room, ensuring stability across production shifts.
  • Compressed Air: Five rotary compressors supplied air at 7–8 kg/cm² through colour-coded mains extending more than 3 km. Each line included automatic condensate traps and gauge points at regular intervals.
  • Process Steam and Heating: Low-pressure branches from the main boiler house provided heat to paint tunnels, enamel ovens, and comfort-heating exchangers throughout the plant. Temperature control valves maintained ±2 °C tolerance.
  • Cooling and Water Circuits: Deep-well pumps delivered cooling water to closed-loop circuits serving the foundry, presses, and machine-tool sections. Flow and return were metered for every department to conserve resources.
  • Monitoring and Control: The Instrumentation Office within Sector D logged daily readings for electricity, steam, and air consumption; deviations beyond prescribed limits triggered immediate maintenance inspection.

Source: Innocenti Industrial Monograph – Prospettive Future, Milan Works, c. 1964.

Between these mains and conduits lay the workshops of maintenance. In their bays, machine fitters rebuilt the very mechanisms that kept the Works exact: pumps stripped and honed, valves reseated, drives realigned, belts tensioned to specification. Electricians traced circuits through panels and junction boxes, replacing contacts before failure could occur. Welders repaired cranes and conveyors during the night hours so that the morning shift could begin without interruption. The motto painted above the tool racks — La continuità è qualità — was no boast but a summary of practice: continuity is quality.

The calibration and instrument offices extended this care into the realm of measure. On marble plates and within glass cases, master gauges and blocks were maintained under constant temperature. Each week, tools from every sector arrived for verification: micrometers, bore gauges, torque wrenches, pneumatic comparators. Technicians compared them against the standards derived from the Bureau International des Poids et Mesures, recording the deviations in ledgers as meticulous as any production journal. The authority of these rooms reached across the factory. A tolerance stamped on a drawing in the design office was a promise; its truth lived here.

Transport within the Works formed another kind of network. Rail spurs entered through the gates and divided into sidings that reached the foundries, the press halls, and the dispatch yards. Electric tractors moved pallets of components between sectors along painted lanes, while overhead cranes crossed the larger spans with the slow confidence that comes from perfect balance. Even the smallest movements — a case of gauges, a trolley of bearings — followed scheduled routes. Nothing wandered. Every object in motion carried a destination card, a habit that made the vast plant behave as a single, deliberate organism.

Tool and parts warehouse at the Innocenti Works
Tool and parts warehouse
Tiered steel racks held tooling boxes and component bins marked “Attrezzi” — the organised reserve that fed every section of the Works through the internal transport network.
Image: British Lambretta Archive

Lighting and ventilation were managed to reduce fatigue: glass-brick façades admitted daylight and roof vents drew heat and fumes through automatic louvers. Scrap from the presses was segregated by alloy for return to the foundry or certified recyclers, and waste oils were collected in sealed containers for proper treatment. Clean floors and clear aisles were maintained as part of quality, not appearance.

Sector E – The Social & Human Divisions (The Worker and the Community)

Industry is a society before it is a sum of machines. Within the Innocenti Works this truth had a place, a timetable, a ledger, and a tone, gathered under Sector E. Here the factory spoke to its own people in a voice at once practical and courteous: arrive clean and punctual; keep order at the bench; accept instruction; take care for yourself and others; use the services provided not as privilege but as method. The day began beneath the clock faces by the gate, a steady current of men and women crossed toward the refectories and workshops in the pale light. The same geometry that ruled the presses ruled this passage too: lanes kept clear, notices legible, doors held open as a habit that needed no reminder.

The worker’s code, printed in the small handbook issued at engagement, set the tone.

Innocenti new employee starter pack — Welcome booklet, History of Innocenti, and Regolamento Operai with FIAMLI benefits
Innocenti Employee Starter Pack
Issued to new workers at the Lambrate Works — the Benvenuto alla Innocenti welcome book, Storia dell’Innocenti company history, and Regolamento Operai containing the full FIAMLI welfare and benefit regulations
Image: British Lambretta Archive

The following excerpts from the Regolamento Operai – FIAMLI Edition, 1964 illustrate the clarity and discipline expected of every worker within the Innocenti Works:

Extracts from the Worker’s Handbook

  • Punctuality: Each worker shall present himself at his assigned post at the appointed hour, with tools and clothing in proper condition for work.
  • Cleanliness and Order: The workplace must be maintained in a state of cleanliness and efficiency. Every object has its place; every bench its keeper.
  • Safety: Guards and protective devices must be used as supplied. Any defect shall be reported immediately to the foreman.
  • Conduct: Courtesy among colleagues is the first rule of precision. Disorder, shouting, or negligence will not be tolerated.
  • Absence: Any absence shall be justified promptly with proper documentation. Repeated neglect constitutes a breach of duty.
  • Tools and Property: Company tools must be handled with care and returned after use. Damage through neglect entails responsibility.
  • Emergencies: On hearing the alarm signal, workers shall follow the indicated routes and assemble calmly at the appointed point.

Source: FIAMLI Regolamento Operai – Prevenzione degli Infortuni, Innocenti 1964.

It spoke in measured sentences about attendance, the keeping of tools, the respect due to foremen and to time. It asked for sobriety and moderation, required proper use of clothing and guards, forbade the dangerous hurry that leads to accident, and reminded the reader that the first precision is courtesy. New hands learned the Works by walking it: escape routes pointed out without drama; alarm pulls shown; the nearest first-aid room named as one might name a street. A signature at the end acknowledged not subordination but membership; one entered, in that act, a community where order was mutual and responsibility reciprocal.

Library inside the Centro Studi at the Innocenti Works
Library of the Centro Studi
A dedicated technical library served engineers, draughtsmen, and apprentices with thousands of volumes and periodicals—underscoring Innocenti’s belief that disciplined study and shared knowledge sustain precision on the shop floor.
Image: British Lambretta Archive

Training began at the schoolrooms, bright halls with benches lined by vices and drawings pinned under glass. Apprentices learned the elements of drawing and mathematics in mornings, the use of files, gauges, and simple machines in afternoons, and in both they learned to watch. A draughtsman’s gesture at the board, a fitter’s listening to a running shaft, a foreman’s hand resting on a surface plate to feel warmth where a measurement would not yet tell—these were part of the curriculum.

Drawing room inside the Centro Studi at the Innocenti Works
Drawing room of the Centro Studi
Rows of drafting benches where engineers and draughtsmen translated concepts into working drawings—linking study, design, and the precision seen on the shop floor.
Image: British Lambretta Archive
Innocenti Metallurgical and Chemical Laboratory within the Centro Studi
Metallurgical and chemical laboratory
Adjoining the drawing rooms of the Centro Studi, the laboratory performed metallurgical and chemical analyses on steels, castings, and finishes—bridging design and production through scientific control.
Image: British Lambretta Archive
Innocenti research and metrology laboratory within the Centro Studi
Research and metrology laboratory
Situated beside the drawing rooms of the Centro Studi, this laboratory housed precision instruments for hardness testing, stress analysis, and dimensional verification—supporting Innocenti’s continuous program of design validation and material research.
Image: British Lambretta Archive

Examinations were regular and exact but never theatrical. Passages from the handbook, on the pride of craft and the dignity of punctuality, appeared as calmly as a formula; advancement followed ability and steadiness rather than noise. Scholarships and reimbursements extended this ladder beyond the gate: evening courses, technical colleges, the quiet ambition of someone who wished to read deeper into the work.

Innocenti medical centre building at Lambrate
The factory medical centre
The Infermeria of Lambrate formed part of the company’s welfare network, staffed by qualified doctors and nurses to provide immediate care, health supervision, and preventive medicine for the workforce.
Image: British Lambretta Archive
Innocenti factory infirmary room at Lambrate
Factory Infirmary – Medical Centre
A quiet treatment room within the Lambrate infirmary, used for first aid and short-term observation. The medical staff provided continuous health supervision and immediate care for workers in all divisions
Image: British Lambretta Archive
X-ray equipment installed within the medical centre at the Innocenti Works, Lambrate
Medical Centre X-ray Room
Modern diagnostic equipment installed within the factory’s infirmary, allowing on-site radiographic examination and rapid treatment of workplace injuries
Image: British Lambretta Archive
Dental treatment room at the Innocenti factory medical centre, Lambrate
Dental Laboratory – Factory Medical Centre
Fully equipped dental surgery within the Lambrate medical centre, providing routine and emergency care for workers and their families under the FIAMLI welfare system
Image: British Lambretta Archive

Sector E’s medical network stood near the heart of the site. An infirmary door was always open; a bell could summon a nurse who knew both the person and the job he did. Radiography, dental surgery, and physiotherapy occupied adjoining rooms where machines were clean, labels exact, and instruments arranged in a map the hand could learn by touch. The Works’ internal mutual-aid fund—FIAMLI—made this care a certainty. Medicines, optical aids, convalescence allowances, wage integration during illness: each item had a line in a ledger and a rule that seemed austere only until one saw the fairness beneath it.

Summary of FIAMLI and FAIPO Benefits

  • Medical Assistance: Every worker and dependent family member was entitled to free consultation and treatment within the Works infirmary network, including radiography, dental, and physiotherapy services.
  • Medicines and Optical Aids: Prescribed medicines were supplied without charge; spectacles and prosthetic aids were reimbursed according to standard tables.
  • Convalescence and Hospitalisation: Wage integration was guaranteed during illness or injury, with additional allowances for hospital stays and long-term recovery.
  • Maternity and Family Support: Paid leave and family subsidies were administered through FIAMLI’s dedicated section to safeguard income and domestic stability.
  • Accident and Disability Coverage: Compensation and rehabilitation support were managed jointly by FIAMLI medical officers and factory administration, ensuring continuity of employment wherever possible.
  • Education and School Allowances: Grants for apprentices’ courses, evening study, and workers’ children attending technical schools reinforced the principle of advancement through knowledge.
  • Pensions and Long-Service Rewards: FAIPO administered retirement pensions, survivor benefits, and commemorative awards for employees completing 25 and 40 years of service.

Source: FIAMLI Regolamento Operai and FAIPO Charter, Innocenti Works, Milan 1964.

For long terms and pensions there was FAIPO, a structure as discreet as it was solid, which made the idea of work extend beyond the day’s end into a life properly supported.

Accident Prevention & Welfare

Accident prevention was addressed in the same tone: as a discipline rather than a campaign. The letter printed on blue paper and pinned in the canteen—Prevenzione degli infortuni—did not scold; it taught. It explained the effect of fatigue on judgement; it advised on posture and the placing of feet at the press; it reminded that a guard unused is a guard removed. Safety stewards passed along the aisles without ceremony, blue armbands easy to see, bound ledgers under the arm, tags ready for a switch marked Fuori Servizio the moment a fault appeared. No one was punished for halting a line at danger; if anything, the gesture was commended and entered in a book where commendations and faults were weighed with the same measured hand.

Extracts from the Safety Circular – Prevenzione degli Infortuni (FIAMLI 1964)

  • Attention and Calm: Every accident begins with distraction. Never allow haste to replace care; precision requires serenity.
  • Posture and Habit: Keep both feet firm before activating any press or lever. Correct position prevents fatigue and error.
  • Guards and Devices: No operation shall be carried out with a guard removed. Any defect must be reported at once to maintenance staff.
  • Signals and Orders: Obey acoustic and visual signals immediately. They exist to coordinate many hands in a single rhythm.
  • First-Aid Awareness: Learn the location of the nearest medical post and the names of those trained to assist. Help given in time is part of one’s duty.
  • Cleanliness and Lighting: Floors must remain free of oil, waste, or obstruction. Replace or report any failed lamp—light is safety.
  • Responsibility: Whoever sees danger and does not act shares the fault of the accident that follows.

Source: FIAMLI – Prevenzione degli Infortuni, Innocenti Works, Milan 1964.

The refectories were large, light, and orderly. Midday made a quiet procession from benches to canteen, the hour kept by a clock that all obeyed and no one feared. Menus were planned with a dietician’s care; a million and more meals passed through the kitchens each year without fuss, and for those who could not dine on site allowances were paid without argument. It mattered that people ate well and together: foremen and labourers at adjacent tables; an engineer with a draughtsman; a group from the toolroom beside a pair from the paint shop. Notices on the walls were as mixed as the company—safety bulletins, a class in hydraulics, a football fixture, an appeal for a colleague’s family—and the voice in which they were written had the same measured courtesy as the handbook.

Industrial kitchens of the Innocenti factory canteen at Lambrate
Factory Canteen – Industrial Kitchens
The large-scale kitchens of the Lambrate canteen, equipped to provide thousands of hot meals daily for Innocenti workers. Meals were prepared under strict hygiene controls as part of the company’s welfare system
Image: British Lambretta Archive
Refreshments bar inside the Innocenti factory canteen complex at Lambrate
Refreshments Bar – Factory Canteen
Within the canteen complex, a modern refreshments bar offered coffee, soft drinks, and light refreshments — a relaxed setting reflecting the Italian social lifestyle that Innocenti encouraged within the workplace
Image: British Lambretta Archive

Beyond necessity stood leisure and culture. Sector E kept a gymnasium, football fields, and in summer a swimming pool; evenings filled with clubs so neatly run that they could have been small factories of enjoyment. Photography classes produced records of the Works fit for archives; a music group rehearsed a programme that appeared each year at the staff festival; a theatre circle mounted plays that used the energy of the day to create a different kind of order. Children knew the place too: the Befana celebration turned avenues into streets, and for weeks afterward coloured paper found its way into pockets across the site as a reminder that a factory could be hospitable as well as exact.

Innocenti recreational swimming pool
Recreation and wellbeing
The swimming pool within the Lambrate complex formed part of Innocenti’s sports and welfare centre — a calm, modern space where employees and families could unwind beyond the factory walls.
Image: British Lambretta Archive
Innocenti factory tennis courts at Lambrate, part of the worker recreation facilities
The Factory Tennis Courts
Part of the Lambrate Works’ social and sporting facilities — tennis courts maintained by FIAMLI for the leisure and wellbeing of Innocenti employees and their families
Image: British Lambretta Archive

Welfare officers worked in rooms that avoided grandeur. Their desks were close to the door; chairs were placed so that a man might sit without looking up into authority. Housing letters were drafted; allowances explained; the bureaucracy outside the Works translated into steps one could take in order. Loans were made sometimes, in confidence and repaid from wages, the act recorded but not advertised. The handbook spoke often of dignity; here the word had practice—help given without display, advice offered without injury to pride, the Works extending its discipline into kindness.

Discipline itself, the subject other factories spoke of loudly, appeared here in smaller, steadier forms. A foreman’s tone, a reminder at the clock, a neat line at the washbasins before shifts: these signalled that precision is a habit. The internal regulation—Regolamento interno—hung framed beside the time recording stations and near the entrances to the halls, its clauses clear but without grand sentences. The first rule was attention; the last was respect. Between them lay care for tools, the correct use of machines, the prohibition of disorder, and the permission—explicit, underlined—to refuse a task unsafe to self or others. Any breach led not to spectacle, but to a conversation noted, an instruction renewed, and only later to penalties whose scale was published and therefore predictable.

The Works’ communications kept this social architecture connected to the rest. In the Central Office a small editorial room assembled the internal bulletin, mixing notices of innovation and praise for long service with pieces on technique and brief historical notes. The archive next door held drawings, photographs, and the negatives from which new prints could be made for the lines; its clerks knew as much of the factory’s memory as any engineer. A visitor who happened to pass at closing would see cabinet doors shut and hear keys turned with the same gravity one heard in the shutting of a machine guard: knowledge treated as a tool to be guarded and handed on.

By late afternoon the canteens quietened and the medical rooms set their night rota. The apprentice school emptied into paths bordered by trees; a football rolled against a fence and was picked up for a last kick. In the social rooms a committee revised the plan for a trip; in the welfare office a letter was folded and placed carefully into an envelope and carried to a gate with a name on it. Across the Works the shift bell sounded, not as an order but as a timepiece, and Sector E’s buildings kept their light a little longer to finish what was begun. It would be easy to call this paternalism; it was something subtler and more demanding. The Innocenti Works held that a person enabled to stand upright—fed, treated, listened to, trained, and addressed with courtesy—would build upright things. In the tone of the handbook and in the quiet grammar of the day, that belief became visible, and the factory’s human order felt as deliberate as any line of gauges in the metrology room.

Tre J – The Voice of the Innocenti Family

From December 1965 to June 1971, Innocenti published its own periodical, Tre J, a house magazine created per il personale della Innocenti — for the men and women of the Works. Across 31 editions, it chronicled the company’s rhythm and human dimension: production milestones, exhibitions, industrial achievements abroad, and the daily life of Lambrate.

Each issue blended international reach with familiar, close-to-home items. Reports from the Turin Motor Show and the Milan Motorcycle Exhibition sat beside pages on FIAMLI welfare updates, Centro Studi scholarships, sports clubs, cultural events, and staff notices.

Using the inaugural December 1965 issue as example: it opened with greetings from Vice-President Luigi Innocenti, covered the presentation of the Orinoco steel complex film (Venezuela), highlighted the new Lambretta 125 Special on the show stand, and listed school prizes, club news (motorcycling, skiing, fishing), and medical guidance for employees. Workers could see the reach of their labour abroad while finding their own names, teams, and families in print at home.

In this way Tre J served as both company journal and social mirror — a bridge between the industrial organism and the people who sustained it, recording the life of the Innocenti community during its most dynamic decade.

Covers of Tre J, Innocenti’s in-house magazine (1965–1971)
Tre J — Periodico per il personale della Innocenti (1965–1971)
Innocenti’s in-house magazine ran for 31 editions, documenting exhibitions, factory life, FIAMLI welfare, and the international expansion of the Works. The covers shown span 1965 to 1970.
Image: Stuart Lanning - (Formerly) The Lambretta Museum - Weston-Super-Mare

Notiziario Lambretta – The First Company Journal

Long before the appearance of Tre J, Innocenti had already established a printed voice for its new scooter world. From 1949 to 1965, the company issued Notiziario Lambretta — a monthly illustrated magazine devoted to the rebirth of Lambrate and the growing community surrounding the Lambretta. It was both technical manual and cultural chronicle, blending reports of competitions, tours, and club life with articles on mechanical innovation and reflections on post-war Italy. Verified editions from across this sixteen-year run can be consulted in the Notiziario archive on the British Lambretta Archive.

The September–October 1949 edition — among the earliest surviving — opened with Perché Lambretta?, an editorial that traced the scooter’s name to the nearby river Lambro and the reborn district of Lambrate itself. Pages followed on racing victories at Monza, Alpine touring exploits, and the reconstruction of the Innocenti works. Columns such as Lambrettotecnica offered detailed maintenance guidance, while others celebrated the emerging phenomenon of Lambrettismo — a social movement linking workers, dealers, and riders across Italy and beyond.

For Innocenti employees, Notiziario Lambretta provided a rare window onto their own achievement, showing the machines they built conquering mountains and racetracks while symbolising national renewal. Together with the later Tre J series, it forms the complete chronicle of Innocenti’s industrial and human story — from the optimism of reconstruction to the maturity of the modern factory era.

Covers of Notiziario Lambretta magazines from 1949 to 1951
Notiziario Lambretta — 1949 – 1965
Innocenti’s first company magazine, uniting technical instruction, racing reports, travelogues, and the early voice of Lambrate’s workers in print. Shown here: early post-war issues including the record-breaking Lambretta streamliner cover of 1951.
Image: Stuart Lanning - (Formerly) The Lambretta Museum - Weston-Super-Mare

The Service Stations and Workshops

Lambretta service-station standards manual and internal layout diagrams, Centro Assistenza Motori, Innocenti
Centro Assistenza Motori – Organisation Manual
Pages from the Innocenti Norme per l’organizzazione assistenziale Lambretta, issued by the Centro Assistenza Motori – Divisione Motori, Sezione Motorscooters in 1958. The manual defined the architectural standards, workflow, and technical criteria for authorised Lambretta service stations across Italy — from workshop layout to customer reception and spare-parts management.
Image: British Lambretta Archive

From the central offices of the Centro Assistenza Motori, the same discipline applied on the Lambrate factory floor extended into every authorised service station across Italy. Each workshop operated according to standardised procedures and documentation issued directly by Innocenti — from architectural layouts and reception methods to parts management and warranty control. Dealers received periodic circulars, technical notes, and updated lists of interchangeable components, all maintained with the same precision that governed production. Within this network, the Listino Parti di Ricambio served as the essential instrument of organisation, a living catalogue continually revised as new models appeared and earlier editions were superseded.

Innocenti Lambretta spare parts list binder, Edition 3, 1951
Spare Parts Catalogue – 1951 Edition 3
An early example of the Lambretta Listino Parti di Ricambio binder issued by Innocenti in 1951. This third edition organised all parts for the 125 M, B, C, and LC models, with tab-indexed sections and periodic update sheets that superseded earlier versions — a hallmark of Innocenti’s precision in technical documentation and dealer support.
Image: British Lambretta Archive
Innocenti Lambretta catalogo attrezzi tools catalogue, late 1960s edition
Innocenti Tool Catalogue – Late 1960s Edition
A complete Catalogo Attrezzi for Lambretta scooters and three-wheelers, issued by Innocenti’s Divisione Motori. This late-1960s edition consolidated all preceding manuals into a single comprehensive reference, specifying every factory-approved tool for assembly, maintenance, and overhaul procedures across all models.
Image: British Lambretta Archive

Beyond the walls of the Innocenti Works stretched another network — a living extension of Innocenti’s philosophy. From Milan’s gates to the most distant cities of Europe, Africa, and the Americas, the company built a global structure of Service Stations and Workshops governed by the same discipline and care as the factory itself. These establishments carried the Innocenti name with pride, ensuring that every Lambretta, Lambro, and Innocenti automobile received the same precision in service that it had known in manufacture.

Network Structure

The system was divided into two principal levels:

  • Regional Commissioners’ Centres — Large regional hubs appointed directly by Innocenti. These acted as administrative and technical links between the factory and the field. Their duties included receiving factory circulars and service bulletins, distributing technical updates and spare parts, conducting inspections, and coordinating training courses. Each centre maintained complete diagnostic benches and specialist tools to handle major repairs and warranty assessments.
  • Concessionaires (Dealers and Service Stations) — Retail and service outlets operating to identical technical standards on a smaller scale. Concessionaires handled routine maintenance, tune-ups, and general repairs; they also executed pre-delivery inspections, warranty documentation, and customer relations under Innocenti’s regulations. Toolkits, storage, and floor layouts followed strict specifications detailed in the company’s manuals.

Though this documentation focuses on the Lambretta and Lambro divisions, a parallel structure existed for the automobile sector. Each Innocenti car dealership and workshop observed the same principles of technical accuracy, presentation, and after-sales discipline.

Atlante Geografico della Organizzazione Lambretta and Innocenti commercial organisation booklet
Atlante Lambretta and Innocenti Organisation Booklet
Two official publications from the Motor Division — the Atlante Geografico della Organizzazione Lambretta nel Mondo and Organizzazione Commerciale e Assistenziàle Innocenti, illustrating the worldwide network of Lambretta distributors and service stations
Image: British Lambretta Archive

Identification and Signage

Innocenti placed enormous emphasis on visibility and consistency. Every authorised workshop displayed official signage, supplied and approved by the factory. Roadside markers guided customers to the nearest service point, while façades bore the distinctive Innocenti or Lambretta lettering. Over time, the colour scheme evolved from yellow in the early years, to red, and finally to the definitive blue that came to symbolise trust and authenticity across the network.

Early Lambretta Servizio signage, 1940s–1950s, with artwork by Nando Rossi
Early Lambretta Servizio Signage – 1940s to 1950s
Two rare enamel signs used by Innocenti service stations in the early post-war period. The rectangular panel features the cowboy-and-dog illustration by Nando Rossi promoting the Lambretta 125 M, while the triangular version shows the classic red-on-yellow Innocenti branding. Only a handful of original examples are known to survive today.
Image: British Lambretta Archive & Davide Michelangelo Merisi

Staff uniforms reflected the same professional order: authorised mechanics wore blue overalls embroidered with the Innocenti or Lambretta logo. The goal was immediate recognition — that wherever a traveller saw those colours, genuine service and spare parts were assured.

Workshop Layout and Equipment

Each service station followed a standard plan issued by Innocenti. The layout began with a clean, well-lit reception area leading to work bays separated by function. Inspection benches, test stands, and calibrated measuring tools were mandatory. Spare parts were stored in numbered bins under the first-in, first-out rule, ensuring freshness and accountability. Walls displayed charts for torque settings, lubrication points, and service intervals. The floor itself was painted to indicate circulation paths and safety zones — miniature reflections of the Works’ own organisation.

Among the essential equipment were Innocenti’s special service tools, supplied with each model’s release. Dealers were obliged to maintain and calibrate these instruments at intervals prescribed by the Centro Studi. Failure to do so could result in suspension of authorisation — evidence that even at the smallest level, Innocenti equated precision with reputation.

Documentation and Technical Control

Every vehicle sold — scooter, three-wheeler, or automobile — came with a Use and Maintenance Manual whose final pages listed authorised service stations in Italy and abroad. For the workshops themselves, a complete literature suite governed daily operations:

  • Workshop Manuals — Model-specific books detailing complete service procedures. Introduced for the Lambretta from the Model C/LC and for three-wheelers from the FLI Series (later the Lambro 175).
  • Uncrating and Assembly Manuals — Supplied to import markets handling knocked-down (KD) kits, especially during the Li Series III period, giving step-by-step assembly and inspection instructions.
  • Spare Parts Catalogues — Indexed diagrams of every component, updated periodically through factory Service Bulletins and Supplement Catalogues. Parts price lists were issued concurrently to maintain transparency and uniformity.

These documents were mandatory working tools, not optional literature. Dealers were expected to file each bulletin, apply revisions immediately, and destroy superseded pages to prevent confusion. The practice ensured that, wherever an Innocenti vehicle was serviced, the procedure and parts were identical to those in Milan.

Selection of original Innocenti Lambretta and Lambro manuals and catalogues
Innocenti Manuals and Technical Publications
A selection of original factory literature issued to authorised dealers and service stations — including Use and Maintenance manuals, Uncrating and Assembly instructions, the comprehensive Istruzioni per le Stazioni di Servizio, Temi di Vendita marketing guides for Lambretta and Lambro models, Trilambretta spare-parts catalogue, and Tempari Motofurgoni service-time charts. These documents defined the standards of Innocenti technical communication.
Image: British Lambretta Archive

Training and Accreditation

Training stood at the core of Innocenti’s philosophy. Official courses were held both at the Works and through the regional commissioners. Mechanics were instructed in diagnosis, maintenance routines, warranty processing, and correct use of special tools. On completion, attendees underwent examinations and received certificates of factory accreditation. Their names were entered in official registers — a quiet fraternity of precision that extended across continents. Refresher courses followed major model updates, maintaining alignment between factory innovation and field practice.

Films and Demonstrations

To reinforce the standards of service and salesmanship, Innocenti produced a series of short instructional films. Shown at factory courses and regional meetings, these illustrated workshop organisation, customer reception, and the dangers of neglecting factory procedures. Portable Cini projectors were distributed so that the films could be screened at local gatherings. Other publications, such as Temi di vendita – Motor scooters e motofurgoni Lambretta, outlined advertising campaigns and showroom presentation methods, encouraging dealers to uphold both quality and profitability.

Genuine Parts and Warranty

All warranty repairs required the exclusive use of genuine Innocenti parts. Service stations documented each intervention on factory forms, noting part numbers, serials, and inspection stamps. Warranty claims were verified at the appropriate level — dealer, regional, or factory — before authorisation. This system maintained traceability and prevented counterfeit parts from entering circulation.

International Coverage

Innocenti’s reach extended worldwide. The publication Atlante geografico della organizzazione Lambretta nel mondo mapped the entire network of authorised service stations, dealers, and regional offices across five continents. It ensured that any Lambretta owner — from Milan to Mexico City — could locate factory-standard assistance. Similar structures were mirrored for Innocenti automobiles, using the same technical and administrative principles.

Updating During Model Transitions

As new models replaced old, Innocenti maintained the flow of information through continuous bulletins and supplements. Workshops could service both current and superseded models with identical precision. This attention to legacy maintenance extended the life of the vehicles and strengthened the customer’s trust in the brand.

Legacy of the Network

The Innocenti service network was an extension of the Works’ moral architecture — order expressed through assistance. Every sign, every uniform, every tool served the same principle: order creates reliability. Across continents, Innocenti workshops formed a single family united by shared standards and the belief that precision must never end at the factory gate.

To see a blue sign bearing the word Lambretta or Innocenti was to know that you were among craftsmen bound by the same discipline as those in Milan. Together they sustained not only a product but a philosophy: that service, like manufacture, is an art of responsibility.

Innocenti Sales (1948–1970)

This appendix reads the commercial pulse behind the Works’ production. Rather than reproduce tables already available on Lambretta Frame Check, it interprets the trend lines that shaped Innocenti’s rise from post-war recovery to worldwide reach.

Post-War Beginnings (1948–1950)

The first Lambretta 125 Model A entered a market hungry for simple, economical mobility. Output rose quickly as Italian reconstruction accelerated and the scooter proved ideal for city and provincial life. Early exports to neighbouring European countries established the distribution patterns later scaled across continents.

Expansion and Export (1951–1955)

The Model C and LC broadened the customer base beyond utility users to students and professionals. Innocenti formalised a tiered dealer and service structure, ensuring parts and standards kept pace with demand. Semi-knock-down and licensed assembly began to reduce tariffs and secure local market footholds while holding quality through factory documentation and tooling.

Globalisation — The Age of D and LD (1956–1958)

The D and LD families became the backbone of international sales and local assembly. Annual volumes moved into the hundreds of thousands, supported by faster lines in Sector C and a maturing export logistics office. Lambretta’s image shifted from post-war necessity to modern lifestyle — a change reflected in advertising, accessories, and urban presence.

Industrial Maturity — Li Series (1959–1963)

The Li Series I–III consolidated manufacturing efficiency and interchangeability. Licensing agreements widened to Spain, India, and Latin America; for the first time, exports exceeded domestic sales out of Milan. The Lambro three-wheeler entered as a durable commercial platform, complementing the scooter’s personal-mobility role.

Diversification — Automobiles (1960–1969)

Parallel to scooter strength, the automobile division took hold with models such as the Innocenti 950, IM3 and later the Mini under license, built on Sector B lines that mirrored the Works’ discipline. The same after-sales architecture (signage, documentation, training, and bulletins) underpinned confidence for car buyers and maintained uniformity across markets.

Transition and Closure (1970–1971)

By 1970, cumulative scooter and three-wheeler production surpassed two million units. Shifts in global demand and intensifying competition changed the economics of Milan-based manufacture. Production at the Works wound down in 1971, while licenses and tooling continued the Innocenti lineage abroad, preserving the design culture and service standards beyond the factory’s life.

Summary

The sales curve tracks more than quantities; it mirrors social change — from austerity to mobility, local to global. Innocenti’s commercial success rested on a complete system: disciplined manufacture, documented service, trained technicians, and assured parts supply. That system carried the Works’ ethos to every market it entered.

Epilogue — Legacy of the Works

When the presses fell silent, the Works did not disappear; it changed form. Half the estate gave way to housing, parks, and public squares; surviving sheds stood for decades as vast, skeletal reminders of the city-factory. Along Via Rubattino, regeneration has repurposed several halls for cultural and civic use, folding fragments of the industrial grid into Milan’s everyday life.

From above, the pattern is still legible: long east–west avenues, foundations of assembly bays, service roads tracing the routes of cranes and conveyors. The outline remains a ghost map of productivity that once employed thousands and exported to more than a hundred and fifty countries.

Yet the truest legacy is not concrete or glass. It lives in the rigor of machines still running, in drawings preserved and studied, and in the memory of a workforce that made precision a social virtue. Every Lambretta, Lambro, and Innocenti car that survives carries a fragment of that culture — proof that organisation can be humane and that progress can be measured in dignity as well as output.

Extract from the Industrial Monograph – Prospettive Future

“Modern industry cannot live on memory. Each generation must rebuild the means of its progress. The task before us is not only to maintain the precision we have achieved, but to extend it through automation, through new materials, and through the education of men capable of directing these tools with the same discipline that once guided a hammer or a file. The Innocenti Works were founded on the belief that industry is a civic duty. Whatever the shape of our future machines, that duty remains: to build with integrity, to teach by example, and to make the life of work a field of dignity and invention.”

Source: Industrial Monograph – Prospettive Future, Innocenti Works, Milan c. 1964.

As Milan evolves, the Innocenti idea endures: clarity of layout, respect for the worker, disciplined service to the customer, and a belief that technology and civility belong together. The factory is gone, but its grammar remains — in the blue signs that once promised help, in the rhythm of engines that still start on the first kick, and in the conviction that order, correctly used, becomes a form of care.

Thus closes the Innocenti Factory Chronicle — not a record of loss, but of continuity: a method, a community, and a standard carried forward wherever the name Innocenti is spoken.

Image and Archival Credits:
All photographs, illustrations, and publications reproduced on this page originate from physical materials held within the British Lambretta Archive collection. Copyright for the original works remains the property of their respective photographers, artists, and publishers. These images are presented here solely for historical, educational, and research purposes under the principles of fair use.